
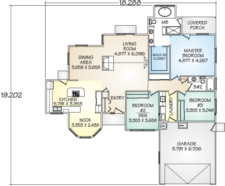
The Olympa panelized kit home is a flexible, open-style design. This plan features an interior laundry room, separate dining and breakfast nook, and a front bedroom that could serve as a den opening off of the entry. There are ample storage areas, especially for linens, and a large master bedroom walk-in closet. The master bathroom has both a large tub and a separate shower.

