

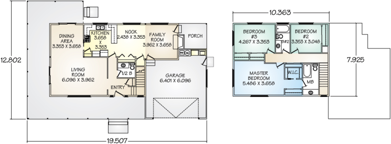
The Woodbridge panelized kit home offers space and flexibility. This home has a huge wrap-around porch that provides space for outdoor leisure activities and also protects the first floor windows from direct sun, a problem with most two-story plans. The large family room, with fireplace and adjoining eating nook, provide a convenient informal entertainment option in contrast to the more formal living and dining rooms.


